NJIT's Design Build Project, BamBook, was not just a simple structure, but a process of iterations using a designed and specified workflow. The project initially started by developing individual models (a model bonanza) to explore the nuances of the Site in the North Ward of Newark. Slowly, the team of 30 distilled the best elements of each iteration into a unified design that serves the community.
As project manager on this team, my role was to keep the "studio" moving, ensuring our collective research translated into a buildable, human-centric space. It was a masterclass in collaboration, communication, and the power of design in a real-world setting.
As project manager on this team, my role was to keep the "studio" moving, ensuring our collective research translated into a buildable, human-centric space. It was a masterclass in collaboration, communication, and the power of design in a real-world setting.
As one of 5 project managers leading a team of 30+ students, I oversaw the design and fabrication of "BamBook" a modular, bamboo community structure. This project simulated a professional studio/firm environment.
original BamBook logo
Initial Individual Model Bonanza.. the design process
The below models were part of the initial schematic design phase, in which students rapidly created 10-30 sketch models to initialize the design process. After a few iterations, these 3 out of 18 were my select favorite.
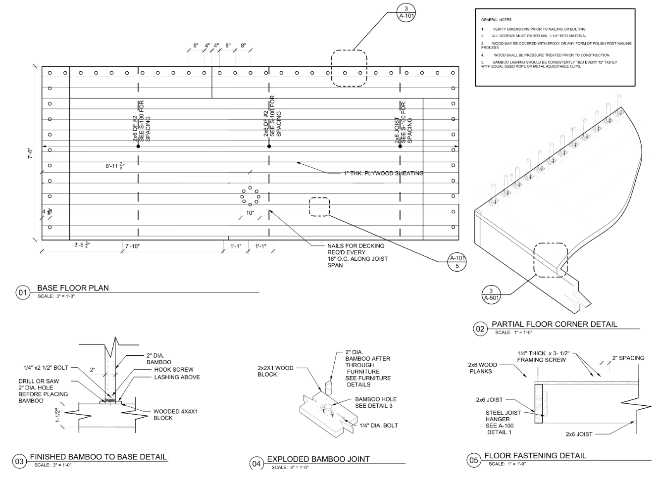
Technical Drawings + CD Sets + Artist Collaboration
Site Boundaries
Site
Student-Artist Collaborators (mentored through design process)
Final Design
Design Stencils for Spray Painting
Construction Process
BamBook with part of the team (bottom right) & NJIT president (top left).